Projekte
auf der Webseite von
All-in Grundstücks GmbH
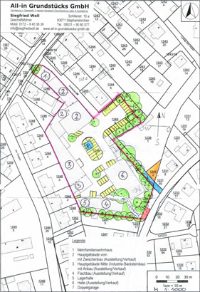
Projekt in 07607 Eisenberg – Thüringen, Greinerstr. 2
Status: Planung, Renovierungsphase 1, Stand Juni 2017
Gesamtkonzept: All-in Gewerbepark
Beschreibung:
Es handelt sich bei dem 6.800 m² großen Grundstück um sechs Gebäude mit insgesamt 5.500 m² Gewerbefläche, die wir gerne an ortsansässige Mittelstandsbetriebe, wie Handel, Handwerk, Dienstleistung, sowie für Ausstellung und Lager vermieten.
Wir beabsichtigen, das gesamte Objekt in zwei Bauabschnitten (Renovierungsphasen) - möglichst mit einheimischen Handwerksbetrieben - zu renovieren und zu fairen Konditionen (ab 2,50 € / m²) einer Vermietung zuzuführen.
An der Einfahrt zur Greinerstraße steht eine – neu zu gestaltende – Werbefläche zur Verfügung.
Derzeit würde sich auch anbieten, das Hauptgebäude Nr. 3 (Industrie-Backsteinbau aus ca. 1900) teilweise im 2. OG so umzugestalten, um eine Nutzung von Wohnflächen zu ermöglichen.
Das MHE (Möbelhaus Eisenberg) mit seinem ganz besonderen Möbelkonzept ist ein traditionell ortsansässiges Unternehmen und wird seinen Geschäftsbetrieb in den angestammten Räumlichkeiten, auf insgesamt 1.000 m² Ausstellung, Lager und Verkauf, im EG und OG des Hauptgebäudes 3, fortführen und dies auch während der Renovierungsphasen.
Als ganz besonderes Highlight könnte sich die neue farbliche Gestaltung der Fassaden herausstellen, welche wir als Blickfang sehr farbenfroh gestalten, um die Attraktivität des Objektes anzuheben (Alleinstellungsmerkmal), was die Frequentierung steigert, Synergieeffekte hervorruft und damit zum Erfolg des Gesamtkonzeptes beiträgt.
„Fassadengestaltung Einfahrt“





